![]() |
Дизайн проекты |
8
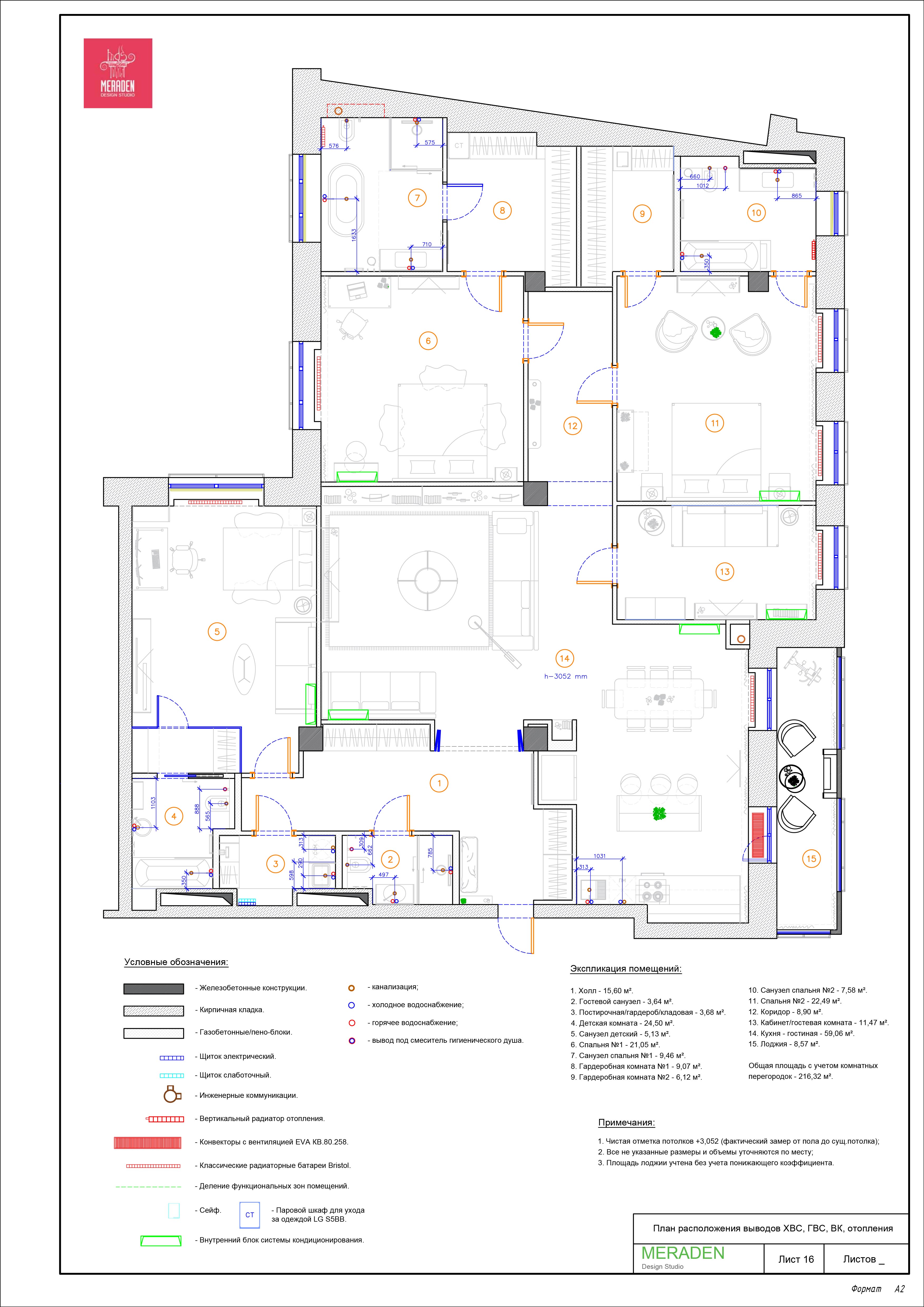
Жилой квартал на Базовской, планировочное решение
5
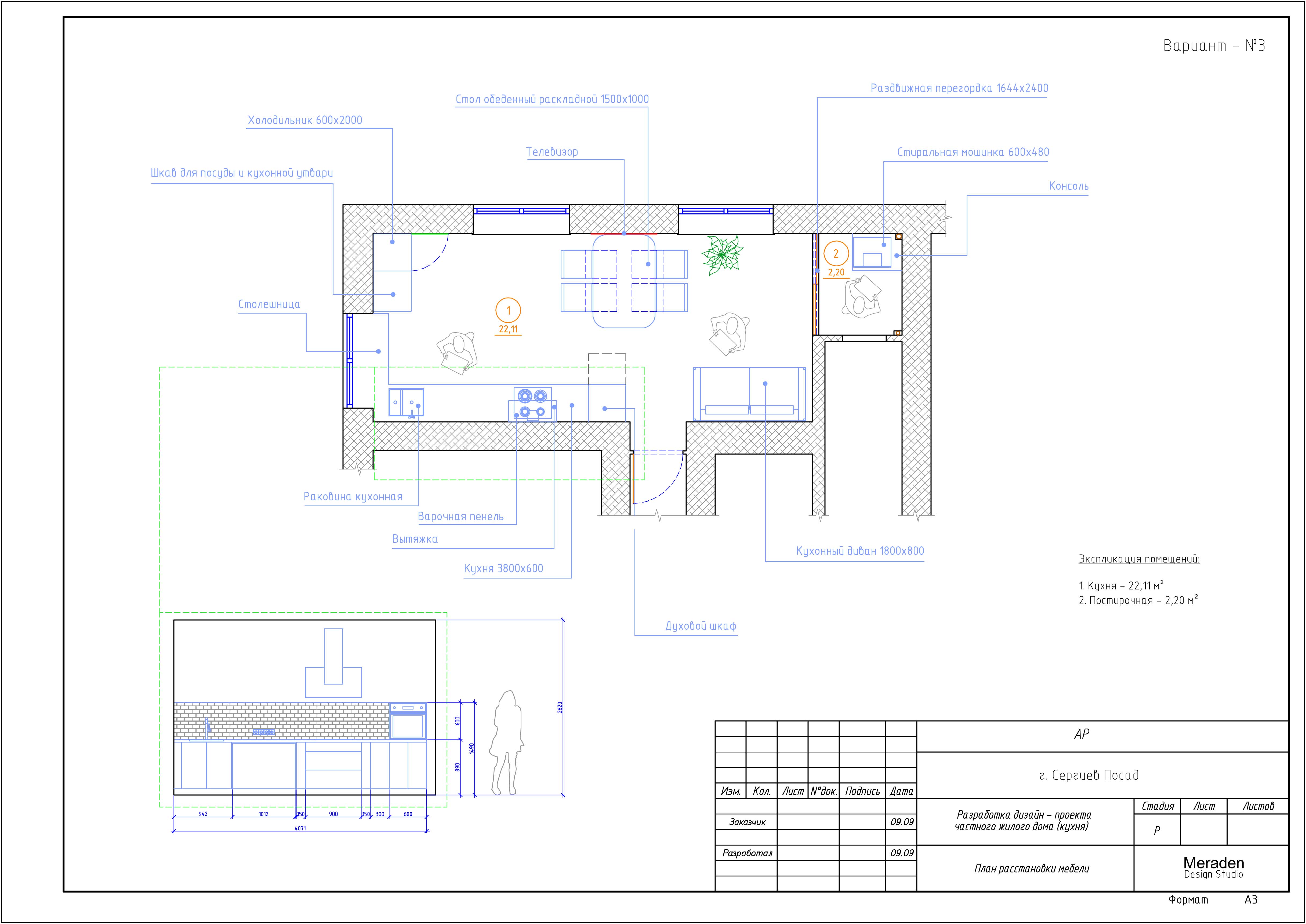
Планировочное решение кухни в загородном доме г. Сергиев Посад
7
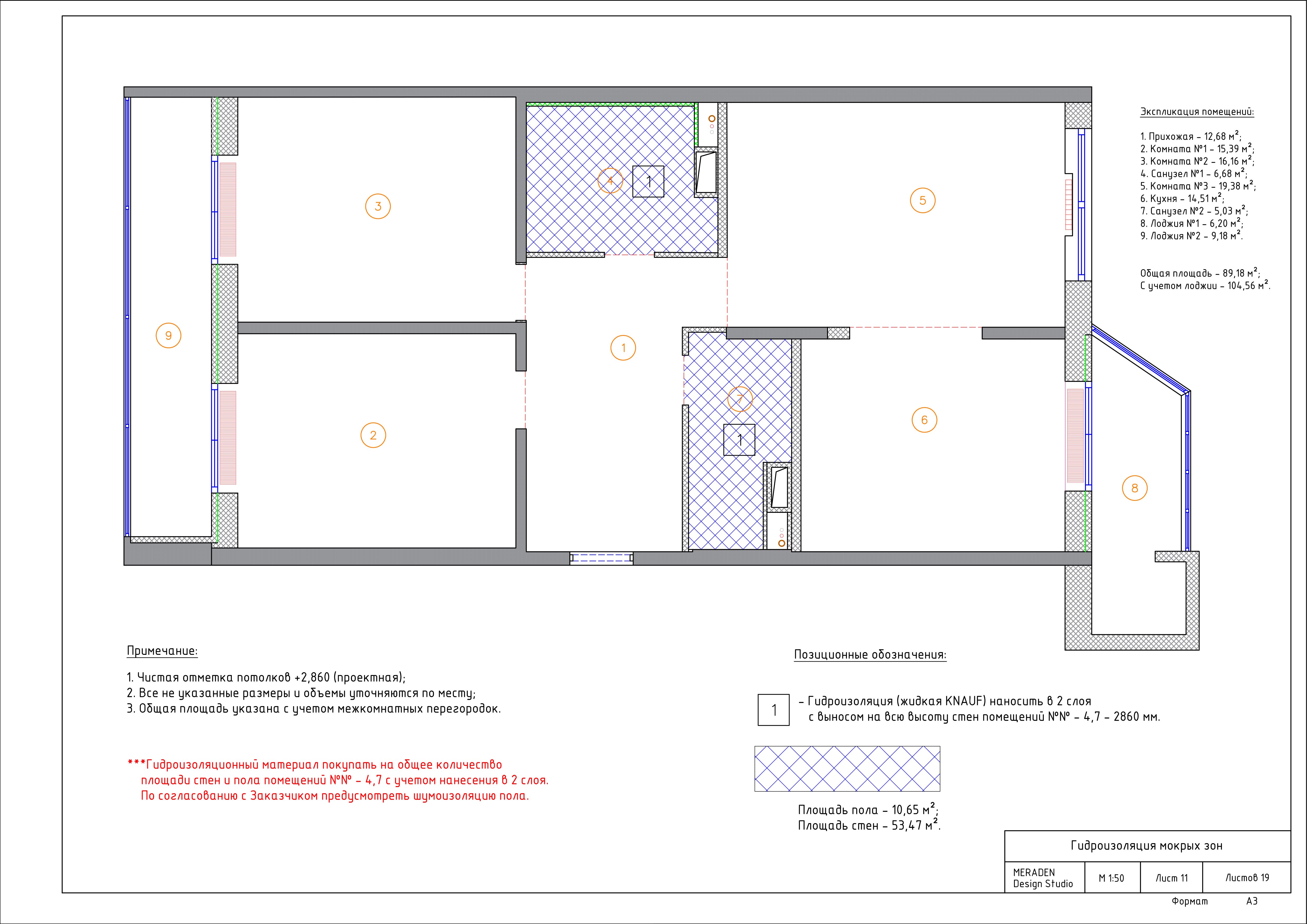
"ЖК ПЕЧАТНИКИ" - планировочное решение
19
г. Санкт-Петербург - частная квартира 100 кв.м. ЖК "Легенда Героев"
21
г. Москва Малый Толмачевский переулок, квартира 150 кв.м.
12
Частная квартира ЖК "Новые Ватутинки мкр. Центральный" 87 кв.м
16
Проект летнего кафе REPABLICA
30




