![]() |
Архитектура |
16
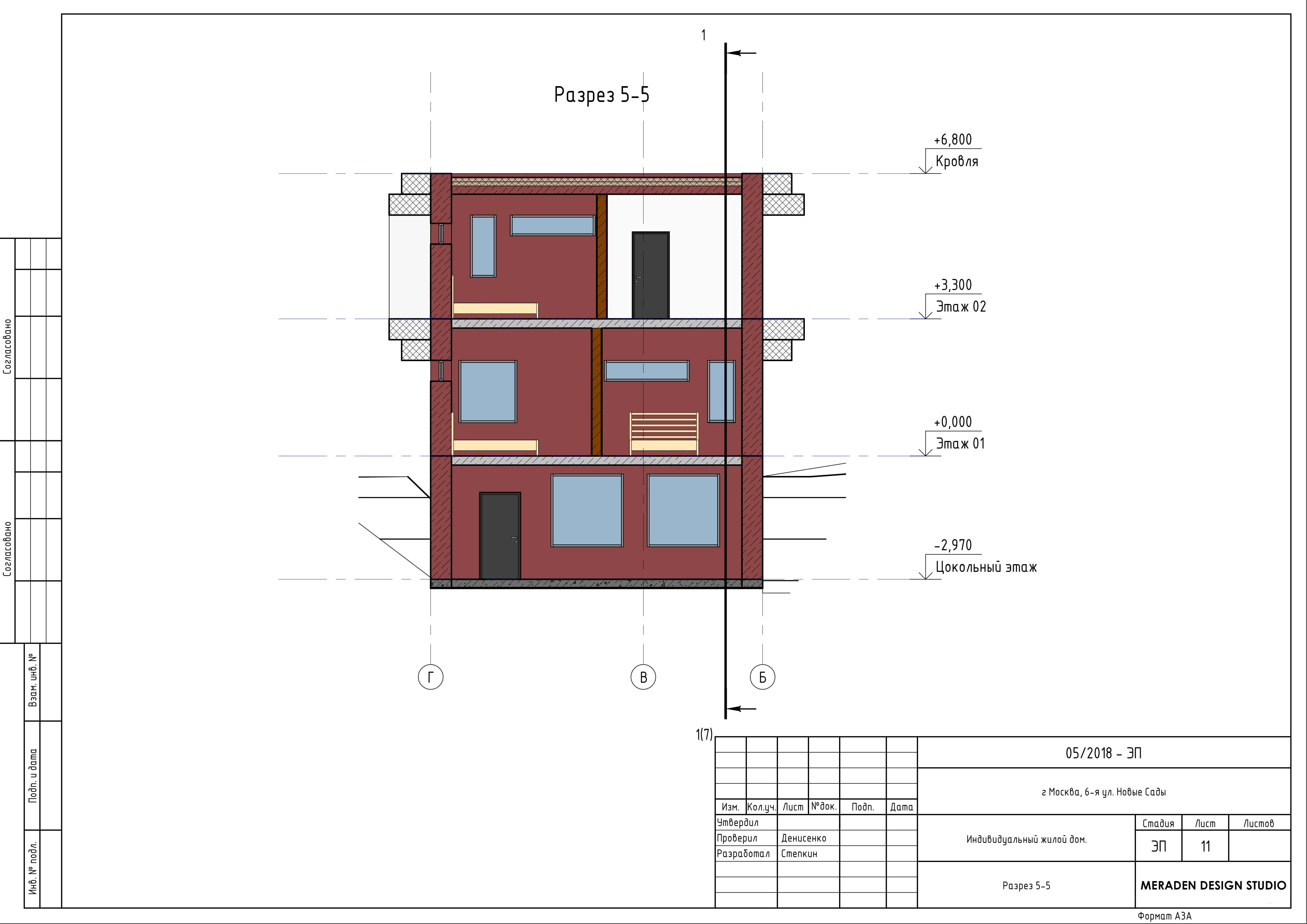
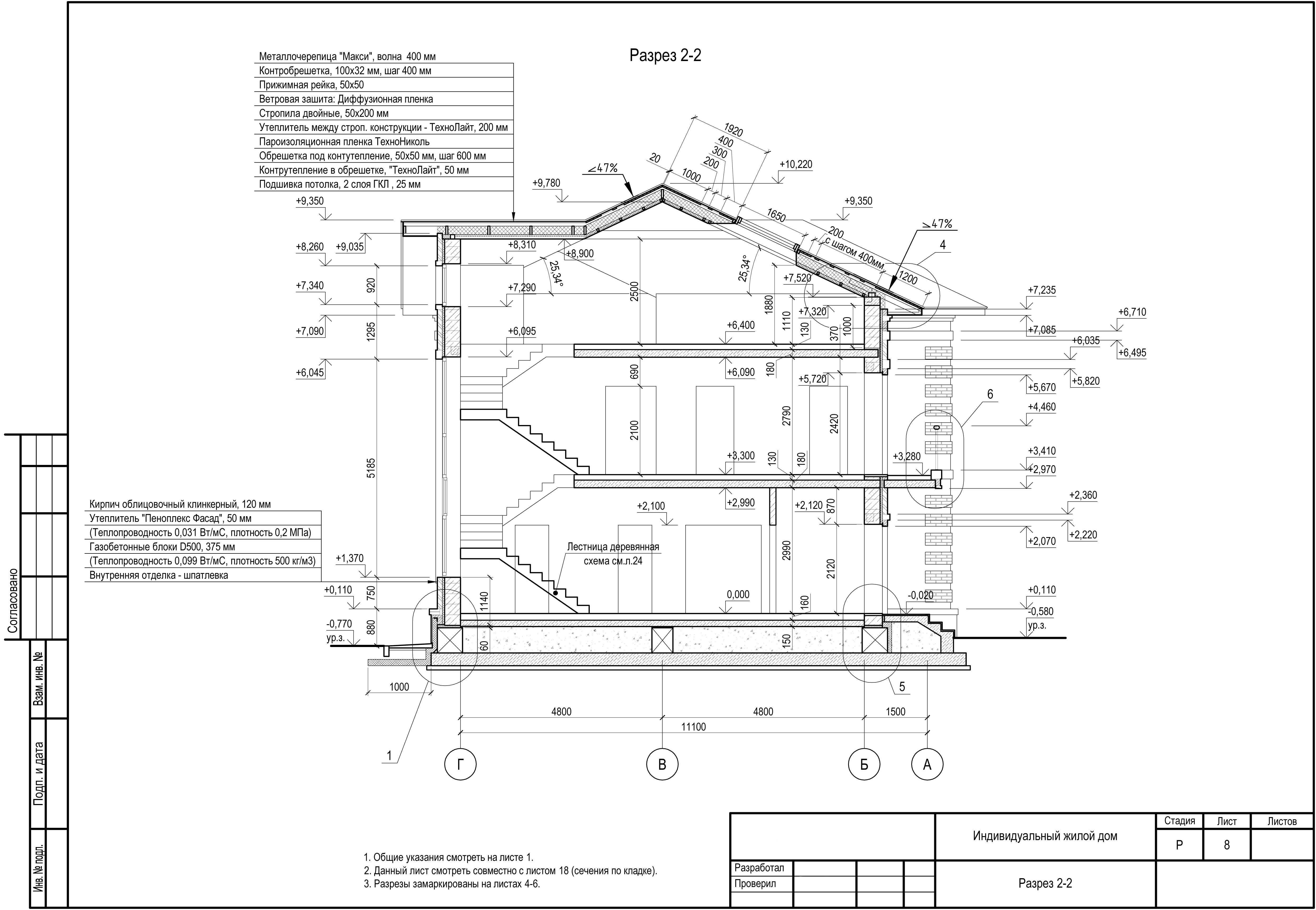
Частный дом, г. Москва- 420 кв.м
8
Частный дом из клееного бруса - 150 кв.м.
7
Частный загородный дом из клееного бруса - 120 кв.м.
10
Кафе в сквере имени 30 лет ВЛКСМ
10
Частный загородный дом из кирпича - 250 кв.м.
2
Московская область, усадьба в Салтыковке - 630 кв.м.
9
